Book a consultation or call +1 (619) 759-7274 or email us at admin@sandiegobr.com

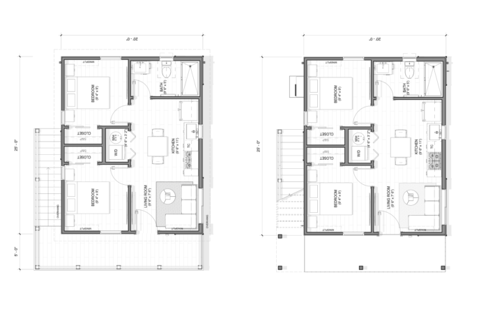
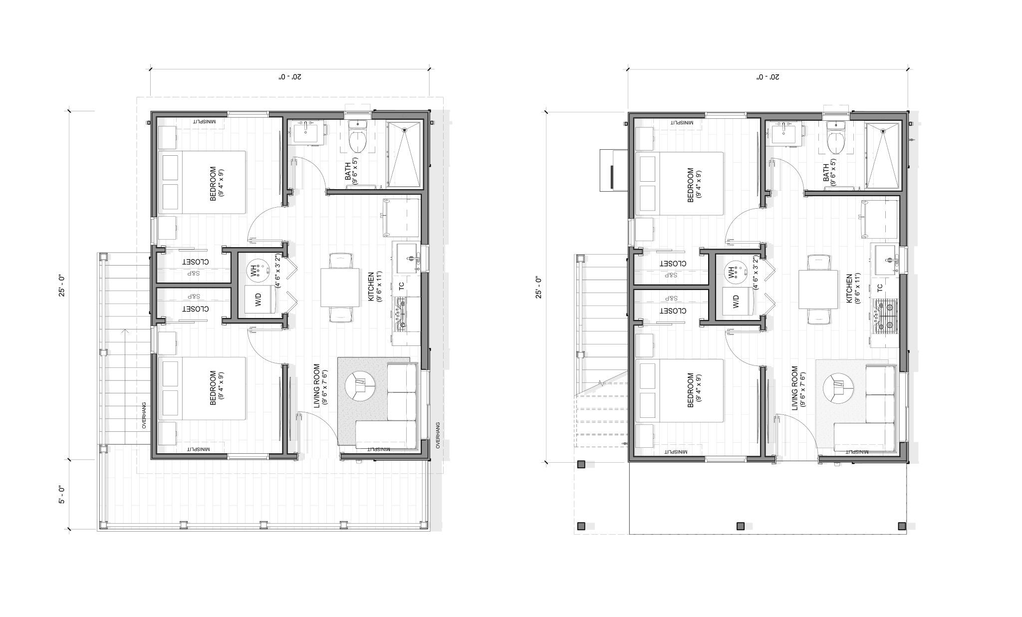
Two story ADU floor plan
2 Bedrooms
This detached ADU offers privacy and tranquility, making it the perfect space for a variety of uses. Whether you’re looking for a guest retreat to host friends and family, a pool house, home gym, or an opportunity to generate consistent rental income, this versatile ADU has you covered.

* Construction prices may vary depending on property conditions, date of construction, and location.
Company
Services
Resources
Copyright © 2025 San Diego Building & Renovation, all rights reserved.