Book a consultation or call +1 (619) 759-7274 or email us at admin@sandiegobr.com

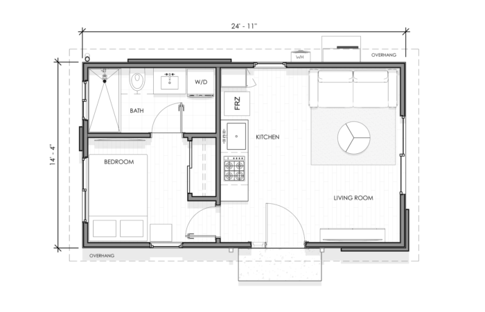
327 SF ADU - 1A

Detached ADU

327 SF ADU

Single story ADU floor plan

1 Bedroom

1 Bathroom
327 SF ADU

This detached ADU offers privacy and tranquility, making it the perfect space for a variety of uses. Whether you’re looking for a guest retreat to host friends and family, a pool house, home gym, or an opportunity to generate consistent rental income, this versatile ADU has you covered.

Request more information
San Diego Building and Renovation

Book a Free Consultation

* Construction prices may vary depending on property conditions, date of construction, and location.

Browse through our ADU Catalog

Explore a wide range of Pre-approved ADU Floor Plans & Designs.
300 SF ADU

1 Bedroom

1 Bathroom

256 SF ADU

1 Bedroom

1 Bathroom

300 SF 2 STORY ADU

2 Bedroom

2 Bathrooms

300 SF ADU

1 Bedroom

1 Bathroom

256 SF ADU

1 Bedroom

1 Bathroom

300 SF 2 STORY ADU

2 Bedroom

2 Bathrooms

Detached 1063 SF ADU

Detached 898 SF ADU

Detached 625 SF ADU

Detached 391 SF ADU